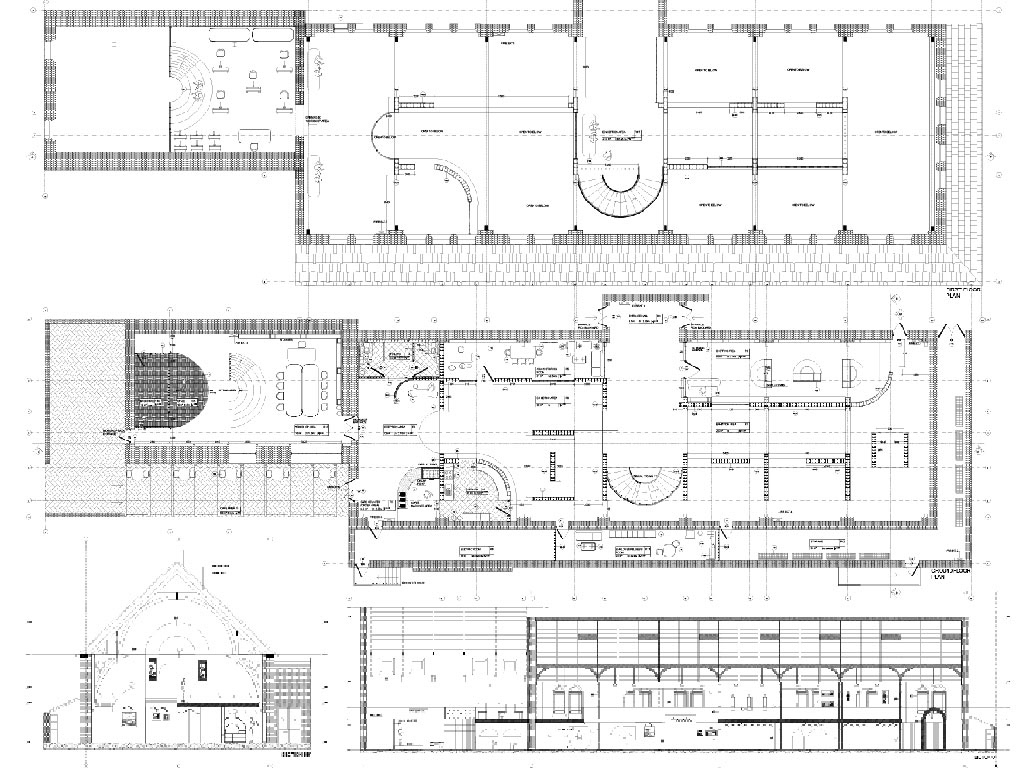
Beckett Art Gallery has been designed in one of the buildings of the historical Our Lady’s Asylum in Cork, Ireland. The design is reflecting the dark history of its building. Interwoven structural elements such as arches and other curved forms represent the abstract form of a brain. This art gallery is bringing new life and new social energy to its location and making that place welcoming for everyone. Even though the new purpose of the structure is very different in comprison to that of mental health hospital, the design still respect its history and makes visitors feel like they are walking in the curves of brain.

You may also like

Back to Top